安全 耐用 好电梯
关于诺特瑞
公司简介
资质证书
产品中心
商务梯
别墅梯
观景梯
医用梯
车梯/货梯
人机界面
部件中心
其他产品
项目案例
产品案例
体验中心
招商加盟
全球合作分布
新合作伙伴
新闻中心
公司新闻
行业资讯
会员俱乐部
影coffee
联系我们
400 025 8586
中文
EN
中文
Español
请输入搜索内容
首页
关于诺特瑞
公司简介
资质证书
产品中心
商务梯
别墅梯
观景梯
医用梯
车梯/货梯
人机界面
部件中心
其他产品
项目案例
产品案例
体验中心
招商加盟
全球合作分布
新合作伙伴
新闻中心
公司新闻
行业资讯
会员俱乐部
影coffee
联系我们
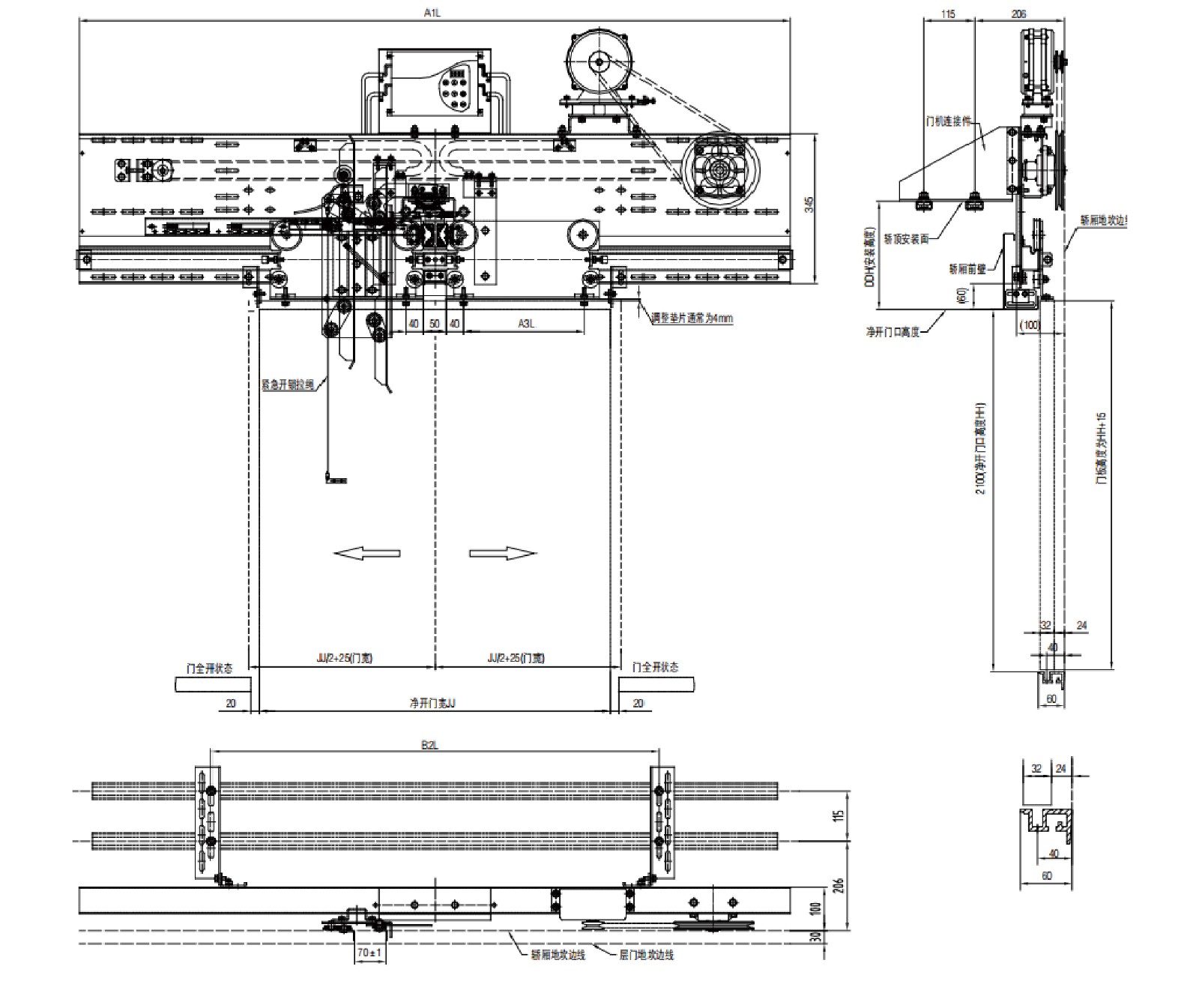
产品中心
部件中心
门系统
回到列表
NTR-D-OL-03XA
立即咨询
联系方式
电梯技术参数表
电梯配件——光幕
电梯配件——曳引机
电梯配件——门机
电梯配件——COP/LOP
电梯配件——编码器
电梯配件——变频器
产品配置
产品特点